リフォーム東京都葛飾区新小岩
Awn[アウン](有限会社セレナ)
店舗酒屋さんの立ち飲みワイン場交流スペース
酒屋さんをスケルトンリフォームで、様々なイベントに対応できるスペースとしてリニューアルした事例。料理とのコラボイベントなども企画されるということで、店内にはアイランドキッチンスペースや気軽に試飲ができるように、立ち飲みスペースなども完備。木の温もりを大切にシックな印象へ大変身した事例です。

部位別ギャラリー

既存のサッシを活用しながら、外壁とともにシックなカラーで再塗装。最小限のコストで、まるで新築のようなモダンな表情へと生まれ変わりました。夜になると温かな光が漏れ出す、街に溶け込む洗練された外観デザインです。

【Before】リフォーム前の外観。長年、街の酒販店として親しまれてきた店舗。黄色のテント看板や陳列された商品に懐かしさを感じつつ、ここから最新の建材とシックな色使いにより、次世代へ繋ぐモダンな空間へと一新します。

異素材が響き合う、洗練の統一感。キッチンや什器の高さをミリ単位で揃えることで、ウッドやスチールといった異なる素材を使いながらも、空間全体に心地よい一体感を生み出しました。視線が抜ける開放的な店内で、上質なひとときを。

空間の格を高める、ブビンガの無垢一枚板。キッチンの天板に採用したこの力強い樹種は、店の象徴として圧倒的な存在感と重厚な趣を放ちます。本物の木だけが持つ温もりと力強さが、訪れるゲストを優しく包み込みます。

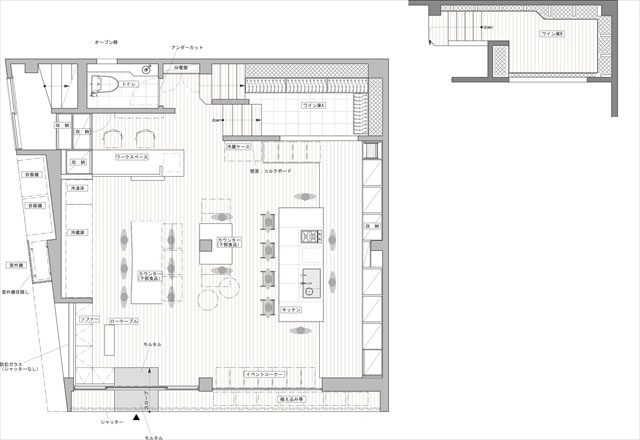
【After】人と食が交差する、開放的なワンフロア・レイアウト。中央に配したブビンガの一枚板カウンターを主役に、キッチンからワークスペース、そして奥のワイン蔵までがシームレスに繋がります。イベントコーナーも備えた多機能な設計が、訪れるたびに新しい発見がある店舗空間を実現しました。

半地下のワイン庫から店内を望む。あえて設けた小さな間口の先には、日常を忘れさせるドラマチックな光景が広がります。高低差がもたらす視線の変化が、訪れるたびに新鮮な驚きと高揚感を与えてくれます。

夜の街に静かに浮かび上がる、店の顔。厚みのある鉄板を精密なレーザー加工で切り出したオーダーサインです。アイアンの重厚感と温かなバックライトの灯りが、上質なひとときへとゲストを誘います。

入り口のガラスに刻まれた店名ロゴ。書体の選定から線の太さ、配置に至るまで、空間のコンセプトに合わせて緻密にデザインしました。ガラス越しに漏れる柔らかな光が、訪れる人を心地よいひとときへと誘います。

空間の美学を崩さない、計算された機能美。このハイスツールは、店内のトーンに合わせて新たにデザインしたオリジナルオーダー家具です。スタッキング(積み重ね)可能な設計により、限られたスペースでも美しく、フレキシブルに活用できます。

階段を下りた先に広がる、隠れ家のような半地下のワイン庫。まるで穴蔵に迷い込んだかのような静寂と、柔らかな光に照らされたワインたちが、日常を忘れる特別なひとときを演出します。

オーク無垢材の柔らかな質感と、黒いワイン棚が織りなす上質な中2階。壁一面を贅沢に使った大容量の収納スペースは、お気に入りのコレクションを美しく、機能的にストック。大切な一本をじっくりと育む、大人のための秘密基地的空間です。

オーク無垢材の柔らかな質感と、黒いワイン棚が織りなす上質な中2階。壁一面を贅沢に使った大容量の収納スペースは、お気に入りのコレクションを美しく、機能的にストック。色彩豊かなアクセントパネルが、大人の秘密基地的空間に華やかさを添えます。

【Before】リフォーム前の店内。長年愛されてきた酒販店時代の趣が残る風景です。手前に見える木製の天板は、この後のリノベーションで『新しいテーブル』として形を変え、お店の歴史を次世代へと繋いでいきます。
この事例に関連するリフォーム事例テーマ
お客様の声
大変満足です。限りある予算の中で、色々と工夫をして頂きました。現場の対応も良く、大工さん・塗装屋さん・電気屋さんも好印象でした。
担当者の工夫したポイント
1951年創業の酒屋さん。10数年前から主力商品をワインに絞り、様々な仕掛けが浸透してきて、さらなる飛躍を遂げるためにリノベーションを決意。10人規模のワイン教室や、料理とのコラボイベントを開けるように、ガスコンロやシンクを備えたアイランドキッチンを設えました。木のぬくもりとワインとの相性がマッチし、素敵な雰囲気が感じられます。様々な可能性が広がるコミュニケーションの場であり、町並みにも溶け込む、近所の方々に愛され続けるお店です。
リノベーションDATA
| 物件種別 | 店舗 |
|---|---|
| 工事年度 | 2013年 |
| 所在地 | 東京都江東区 |
| 構造・工法 | 鉄骨造 |
| 工事期間 | 30日間 |
| 築年数 | 築50年 |
| 総費用 | 750万 |
| 施工規模 | 67m2 |
| 仮住まい | 無し |
| 工事内容 | 店舗スケルトンリフォーム/デザイナーズ/オーダーキッチン/オーダー家具/看板製作 |

HOME






