減築で快適な老後の住まいを実現!
減築のポイントやリフォーム費用を大公開
ここ数年で「減築」という言葉を耳にされる方も増えているのではないでしょうか。
減築とはその名の通り、家を小さくするリフォーム工事のこと。
ここでは減築について、メリット・デメリットをはじめ、減築の種類別にリフォーム費用や、成功するポイントをご紹介します。
重要ポイント
1
減築は、動線もすっきりと建物の重量も軽くなるため、
暮らしやすさの改善・耐震性の向上が期待できる!
2
減築にあたってのおおまかなリフォーム目安費用(減築 床面積20㎡の場合) 減築する箇所だけではなく、構造や補修工事の規模によって大きく金額が異なります。
*木造 300~600万円程 *鉄骨造 500~1,300万円程度
3
ライフスタイルから快適な暮らすための部屋や空間の使い方を
しっかり提案してくれるリフォーム会社選びが重要です。
少子高齢化により、広さよりコンパクトに永く住み続けることが注目され、減築を選ばれる世帯も多いでしょう。そんな減築を成功させたリフォーム事例もご紹介します。ぜひ参考に、計画を進めてみてください。
減築のメリット 建物の安全性と様々な費用の削減が期待できる
お金をかけて家を狭くする減築に、マイナスな印象を受ける方も多いと思いますが、目的によっては減築は嬉しいメリットがたくさんあります。ここでは、そんなメリットをご紹介します。
建替えより費用を抑えられる
減築の場合、解体費用や登記費用が建替えより安く済むことが多いため、総額費用が安価におさえられます。例えば、床面積35坪 木造2階建てを建替えする費用は2,100万円程、これに解体費用やその他登記費用などの諸経費が別途200~300万円かかります。それに比べ、同条件の木造2階建てを一部減築する費用はおおよそ500万円程、解体費用や諸経費が100~200万円程度と安価になる可能性があります。
暮らしやすさが向上
不要な部屋や動線を減らすことができる減築。それにより快適に暮らすことが可能となります。
- 生活動線を短く簡略化できるため、日々の生活で効率が良くなる
- 床面積や部屋数が減ることで冷暖房の効率がよくなり、使用料も減ることから光熱費の軽減に繋がる 可能性がある
- 元の面積より小さくなるため、隣家との距離が広がり風通しや採光を改善できる
- 自身で管理できる空間のみにすることで、防犯上の死角が減り安全性が高まる
生活動線が整理されることは、豊かな暮らしをする上で非常に重要ですね。
耐震性の向上
耐震性に影響がある家の重量は、減築することで軽くできます。家全体の負担が減少することで、耐震性が向上する場合があります。何よりリフォーム工事をする際に、耐震性能を確認したり、家に不具合がないか確認するため、問題が見つかれば減築と合わせて耐震改修工事などで不安を解消することができます。確実に耐震性が向上することは間違いないでしょう。
メンテナンスの負担軽減
使っていない部屋でも掃除や空気の入れ替えなど、定期的な管理は必要です。不要な部分を減築することで、先々にかかる内装リフォームなども含めたメンテナンス費用を削減することができます。また外壁や屋根の面積が少なくなるのため塗装などの補修費や様々な面で後々のメンテナンス費用をおさえることができます。
固定資産税の軽減
固定資産税は、土地や建物を所有している人が継続して負担する税金です。固定資産税評価額は延べ床面積によって決まるため、減築することで、固定資産税評価額を下げることに繋がります。
子供が巣立って使用していない部屋がある場合や、ご夫婦の老後に向けてシンプルで安全な家を希望される方は「減築」をすることで上記のようなメリットが期待できます。
もちろんメリット以外にも、デメリットもあります。
特に気持ちの面で、家を小さくするのに費用がかかることに抵抗を感じる人は多いようです。
通常のリフォームより割高な費用がかかる
減築は家全体に工事が及ぶためリフォーム費用は高額になることも予測されます。 減築以外のリフォーム工事を同時に行う場合などは、1,000万円以上は費用をみてきましょう。 また、仮住まいや引っ越し代なども合わせて、ある程度余裕をもった計画が望ましいでしょう。
リフォーム中の仮住まいが必要
減築工事は、数ヶ月にわたることも多く、仮住まいが必要です。その分の費用がかかることを忘れがちですが、しっかり計画の段階で仮住まいの費用も含め検討しましょう。 リフォーム会社によっては、仮住まいを用意し、価格的にも安価もしくは無料で住めるように融通してくれる会社もあるので探してみるといいでしょう。
減築した家に物がおさまらない
減築した家にいざ引っ越すと、物があふれて片付かないというケースが多いようです。もちろん減築とは床面積を減らすわけですから、今までの物がそのままおさまると思ってはいけません。引っ越す際には、必要な物を選別して整理することが大切です。
上記であげたようなメリットとデメリットを理解し、よく検討してから減築リフォームを進めましょう。
減築リフォーム事例 住まいの快適性を向上した事例をご紹介!
ここでは、まさに不要なスペースを減築することによって、採光や通風、間取り、バリアフリーにも対応したリフォーム事例をご紹介。ご家族の暮らしやすさを重視する方法として「減築」を選択された成功例です。
建物| 築20年木造2階建て 所在地| 神奈川県川崎市
リフォーム会社| 株式会社アイジーコンサルティング
こちらのご家族は以下のような問題を抱えていらっしゃいました。
- 荷物置き場となって使わない店舗部分
- 家に1坪程度の台所しかなく、洗面脱衣所を兼ねている不便さ
- 部屋が暗いなど、高齢の母親は住み難さを抱えている
- 喘息のあるご主人も安心できる住まいにしたい
その問題を、不要な店舗部分を減築することで、通風と採光を確保し、明るく広いLDKを実現しました。
奥様の好きなカントリ―スタイルで、自然素材をふんだんに使用した空間は、ご家族も安心して暮らすことのできる住まいとなりました。
道路いっぱいまで建物があった部分を減築し、すっきりした印象の外観に
床は無垢フローリングを、壁は奥様の夢であった塗り壁仕様で、明るく広々したLDKへ
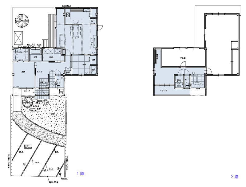
間取り図 1階の庭部分は元店舗が経っていたスペースです。そこを全て撤去しました。
つづいて増築を進める場合、事前に知っておくべき情報をまとめました。以下の内容を事前に確認して、賢く増築を進めましょう。
不要部分を整理したいと考えることで現在の住まいを見つめ直すことにもなります。それにより、家の不具合や不便さが見えてきて、それを改善するきっかけにもなります。不要な空間と未使用な物などを整理して片づけることも、生活の質を改善するためにも、「減築」は最良の手段になるようです。
ぜひ、こちらの事例を参考に「減築」を考えてみてはいかがでしょうか。
減築の費用を種類別に徹底解説!
「減築」をする際にかかる費用は分からないことも多いでしょう。 ここでは、減築の種類別にかかるリフォーム費用をご紹介します。
減築は、1日・2日で工事が完了するような何万~何十万単位の小規模なリフォーム工事と異なり、構造や様々な要因で費用が変わる場合が多々あります。
きちんと相場費用を知り、慎重に判断して計画を進めることが重要です。
掲載リフォーム事例:減築、フルリフォーム(モノリス秀建株式会社)
どの箇所を減築するかによって費用が異なります。
もちろん、床面積や、構造、屋根・外装・内部の補修工事の規模や状態によっても費用は大きく変わってきます。
ここではそんな減築する箇所別に見た大まかなリフォームの相場価格をみていきましょう。
case1 2階建ての1階、2階の一部をそれぞれ撤去
| 工法 | 減築面積 | 目安費用 |
|---|---|---|
| 木造 | 1階45m2+2階45m2 | 約1,200万円 |
| 鉄骨造 | 1階45m2+2階45m2 | 約1,500万円 |
以下のようなことを検討される方は、1階・2階の一部を撤去する減築がおすすめです。
- 隣家との間隔を広げたい
- 日々の掃除の手間を減らすために、必要最低限の広さにしたい
- 駐車場やガーデニングなどの空間を増やしたい
case2 2階建ての2階の一部を撤去
| 工法 | 減築面積 | 目安費用 |
|---|---|---|
| 木造 | 35m2 | 約500万円 |
| 鉄骨造 | 35m2 | 約630万円 |
2階で使ってない部屋があって持て余している方におすすめです。
- 子供部屋など不要になった2階の部屋をどうにかしたい
- 広いバルコニーが欲しい
- 日当たりを良くしたい
case3 2階建ての一部を撤去し、吹き抜けを設ける
| 工法 | 減築面積 | 目安費用 |
|---|---|---|
| 木造 | 30m2 | 約500万円 |
| 鉄骨造 | 30m2 | 約600万円 |
2階の床を一部撤去することで、吹き抜けからの採光で家中が明るく開放的な間取りになります。
吹き抜けを設けることで、2階にいる家族の気配を感じることも可能です。家族間でのコミュニケ―ションの改善に最適です。
あわせて断熱改修を行って、適切な空調機器・暖房機器の導入により家全体の温度差を減らすことができます。(断熱改修は別途費用がかかります)
case4 平屋の一部を撤去
| 工法 | 減築面積 | 目安費用 |
|---|---|---|
| 木造 | 40m2 | 約400万円 |
| 鉄骨造 | 40m2 | 約500万円 |
CASE1と同様で、以下のような場合に最適です。
- 隣家との間隔を広げたい
- 日々の掃除の手間を減らすために、必要最低限の広さにしたい
- 駐車場やガーデニングなどの空間を増やしたい
case5 2階を撤去し平屋へ
| 工法 | 減築面積 | 目安費用 |
|---|---|---|
| 木造 | 110m2 | 約1,100万円 |
| 鉄骨造 | 110m2 | 約1,400万円 |
大胆に2階をまるごと撤去する減築リフォームです。
ライフスタイルの変化で、高齢になり階段の上り下りを減らしたい方や、介護生活へ向けて家の準備を始めている方など、平屋への減築はおすすめです。
- 介護生活を楽にしたい
- 耐震性を向上したい
- 2階をほとんど使用しないのでどうにかしたい
上記の目安費用には、それぞれの減築箇所ごとで必要な解体費用や撤去した後に補修する屋根・壁・床などの補修工事費用に、簡単なクロスやフローリングの張替えなどの内装工事費用、改築に伴い必要になる箇所における断熱材の補強なども含まれています。
あくまで費用の目安となるので、実際に計画を進める際には、きちんと複数のリフォーム会社から見積もりを取得して比較することが必要となります。
\減築の経験豊富なリフォーム会社を専門家が厳選してご紹介します!/
減築はライフスタイルに合わせたプランとリフォーム会社選びが重要
減築を選ぶ理由として、多くは家族構成の変化によって使われない部屋を有効的に活用することを目的とした方が多いようです。 例えば、4人家族の子供2人が巣立ち、夫婦2人となった際に、子供部屋などの細かな空間を繋げて、広い空間にした方が、部屋中明るく快適といえるでしょう。また老後を考え広い間取りとすることで、入口のスぺースなども大きく取ることができるため、何かと便利です。
最後に、減築を成功させるポイントを簡単にご紹介します。
POINT1 ライフスタイルにあわせて、部屋や空間の使い方を考える
減築を考えはじめると、費用にばかり目がいってしまいます。コストダウンのため空間を意識せずに減築してしまうと折角の機会を逃してしまうことになりかねません。
そもそも「減築」をする目的は何かを考えましょう。
使わなくなった部屋を減らすことが目的ではなく、老後まで考え、いかに快適で楽(シンプル)に生活をおくることができるかを考えることが重要です。
■老後に向けて「バリアフリー」を優先し、使わない2階をまるまる減築
階段の上り下りもなくなり、ワンフロアで生活が完結するため、介護が必要になった場合も比較的、移動が楽になります。さらに、耐震面でも平屋は2階建て等に比べて安心です。
■夫婦の趣味部屋を実現するため、2階の一部を減築して2部屋を確保
夫婦の趣味の時間を優先するため、減築し間取りも一新することで、快適な生活を手に入れることが可能。
減築は、トイレを交換するだけのリフォームではなく、生活の質を改善することを目的としたリフォームです。誰を中心に暮らしを考えるのか、空間をいかに活用するして問題を解決するのかじっくり検討しましょう。
ご家族のライフスタイルと向き合い、快適な暮らし方を見つけるためのリフォームということです。
POINT2 助成金を利用して賢く減築する
家の構造そのものを大きく変える減築は、上記でも紹介したように高額な費用がかかります。なるべくならば、安くおさえたいと思うのは当然のことです。
そこで、減築をする際に利用できる助成金制度などを簡単にご紹介します。
減築されるまえに助成金制度などを調べて、賢く減築リフォームを行いましょう!
■耐震補助金
建物の安全性を向上させるための工事であると認められれば、耐震改修工事として補助金の対象となります。特に2階建てを平屋に・平屋の一部を撤去する場合は耐震性が向上します。
減築を検討している方は、リフォーム会社に相談して補助金対象となるよう耐震診断を実施することをおすすめします。
■環境配慮型住宅リノベーション補助金
減築にかぎりませんが、断熱工事を行う場合や、窓(複層ガラスの取付け)の交換などをする際に補助金の対象となります。
■住宅ローンを利用
リフォ―ム費用はリフォームローンより、低金利な住宅ローンを利用することが可能です。返済期間も長期で組めるので毎月の返済額を抑えることができます。
リフォーム会社に予め住宅ローンを利用したい旨を伝えておくといいでしょう。
POINT3 最も重要なのはリフォーム会社選び
減築を成功させる最も重要なポイントは、実績豊富なリフォーム会社を選ぶこと。
耐震改修などの構造的な問題や、減築することで減るのではなく豊になる暮らしを演出するためには、依頼するリフォーム会社が「減築」に対しての知識と経験をどれほど持っているかにかかっています。
実績ある会社であれば、お客様のご要望に合わせて、最適なプランの提案もお手のもの。要望をしっかりまとめて整理した上で、実現するための方法を検討してくれるはずです。
探したリフォーム会社が減築での実績ある会社かどうか判断するには、
1社ではなく2・3社のリフォーム会社を比較・検討することが必要です。
効率よくリフォーム会社を見つけたい方
不安をしっかり解消してからリフォーム会社を選びたい方
とにかく分からないことばかりで専門知識の高い人に相談したい方
専門家が厳選した【減築】リフォームで経験豊富な会社をご紹介します!


