リフォーム東京都葛飾区新小岩
Awn[アウン](有限会社セレナ)
戸建家族の絆深まる和モダンの家
3階建てご自宅の全面改修。離れていたキッチンと茶の間を間取り変更により繋げ、広いLDKとしました。リビング階段を取り入れご要望であるご家族とのコミュニケーションを常にはかれる空間へ大変身しましした。2階にはベランダ部分を増築して子供部屋を配置するなど、ご家族のスタイルに合わせたリフォームの成功事例です。

部位別ギャラリー

【After】重厚感漂う、マットブラックの装い。既存のサイディングを剥がし、耐久性に優れたガルバリウム鋼板へと一新しました。シャープな質感と落ち着いた黒が、街並みの中で一際目を引く、モダンでスタイリッシュな邸宅へと生まれ変わりました。

一歩足を踏み入れれば、そこは古都の風情漂う場所。京町家をイメージし、石畳風のタイルや芦野石柄のフローリングを贅沢にあしらいました。格子戸から差し込む柔らかな光が、住む人とゲストを優しく迎え入れる、趣深い玄関です。

【After】キッチンと茶の間を繋げ、広々としたLDKへ。リビング階段を採用することで、空間に縦の広がりと家族の自然なコミュニケーションを創出しました。ダークトーンの建具と柔らかなダウンライトが、心地よい安らぎの時間を演出します。

三方が開けた都内では希少な立地。日中は豊かな光が差し込み、夜は深い静寂に包まれる寝室です。和の趣を添えるスリット格子の引き戸と、落ち着いたトーンのブラインドが、都会の喧騒を忘れさせる上質な時間を演出します。

【After】ベランダ部分を増床し、3.8畳+収納を完備した子供部屋を新設。コンパクトながら、大きな窓から光が差し込む明るく心地よい空間です。限られた敷地を有効活用し、お子様の成長に合わせた理想のプライベート空間を叶えました。

一日の疲れを解きほぐす、極上のバスタイム。ゆとりある1620サイズの浴室には、心身を癒やすマイクロバブルを搭載。落ち着いた木目調の壁面とシックな黒の浴槽が、まるで高級ホテルのスパのような贅沢なひとときを演出します。

【After】3階部分を大胆に『減築』し、空を独り占めできる広々としたルーフバルコニーを新設。周囲の視線を遮るルーバーフェンスと、便利な屋外シンクを完備。BBQや家庭菜園など、都市生活に彩りを添える開放的なプライベートテラスです。

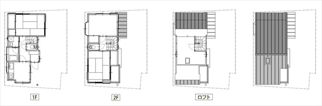
【Before】リフォーム前の間取り図。細かく仕切られた和室や独立したキッチン、活用しきれていなかったロフトなど、かつての標準的なレイアウト。ここから3階の減築やベランダの増床を経て、光と風が通り抜ける開放的な多機能住宅へと再生します。

【After】3階の減築とベランダの増床により、理想のライフスタイルを実現した間取り。広々としたルーフバルコニー、お子様それぞれの個室、そして1620サイズの贅沢な浴室。限られた敷地の中で、家族のこだわりをすべて形にした、創意工夫あふれる3層構造の住まいです。
この事例に関連するリフォーム事例テーマ
お客様の声
やっぱり我が家が一番だね、としみじみ感じる家になりました。リフォーム前は部屋が細かく仕切られていて、キッチンと茶の間が離れていた為、家族そろってゆっくりすることができませんでした。リフォームしてLDKとなり、家族が一緒にいる時間が増え、より一層絆が深まりました。年頃になった子供達もそれぞれ自分の部屋が出来て大満足。これからは3階のバルコニーからスカイツリーを見ながら食事をしたり、お酒を飲んだりと楽しみが増えそうです。
担当者の工夫したポイント
気がつけばいつも一緒。実際に住み始めてそう感じる和モダンの素敵な住宅に生まれ変わりました。ご主人こだわりの「和」を随所に配置し、ガルバリウム鋼板の外壁などモダンな素材も織り交ぜて、全体を落ち着きある空間にまとめています。
リノベーションDATA
| 物件種別 | 一戸建て |
|---|---|
| 工事年度 | 2013年 |
| 所在地 | 東京都江戸川区 |
| 構造・工法 | 木造在来工法・.3階建て |
| 工事期間 | -- |
| 築年数 | 築24年 |
| 総費用 | -- |
| 施工規模 | 85m2 |
| 仮住まい | 有り |
| 工事内容 | 全面改装/デザイナーズ/エクステリア |

HOME








