リフォーム東京都葛飾区新小岩
Awn[アウン](有限会社セレナ)
戸建多機能格子のある家へ
元、診療所兼ご自宅を二世帯住宅に一部リフォームした事例です。高齢のお母様の気配を常に感じられるように1階にあった診療所スペースLDKとすることで家族のコミュニケーションを図れるような住まいとなりました。しかし元、診療所は開放的なためプライバシーをどう保つかが重要な課題。そこでLDKとなるその部分に格子壁を設置し、風や光を取り込みつつ、プライバシーも保たれる工夫を施しました。一部回収することで、ご家族の憩いのスペースを作り上げたリフォーム事例をぜひご覧ください。

部位別ギャラリー

街並みとの調和を大切にした和モダンの邸宅。メンテナンス性と意匠性を両立させたこだわりの塗装仕上げが、住まいに品格と耐久性を与えます。

Before|長年、街の風景として親しまれてきた和風住宅。その趣はそのままに、現代の暮らしに寄り添う住まいへと生まれ変わる直前の姿です。

診療所時代のソファと照明を再利用。歴史を大切にしながら、開放的なリビングへと生まれ変わりました。

白と木目が調和する、ぬくもりのある住まい。毎日の暮らしを明るく彩る、ナチュラルな内装実例。

構造補強を、空間の個性に。視線を遮りすぎない筋交いによる仕切りが、安心感と開放感、そして家族のつながりを同時に叶えます。

Before|診療所当時の面影を残す室内。建物のポテンシャルを活かし、構造を強化しながら、光溢れる現代的な住まいへと再生させました。

お気に入りの風景や光はそのままに。既存の窓に合わせてシステムキッチンを配置し、明るさと開放感を手に入れました。機能美と心地よさが同居する調理空間です。

既存の貴重な無垢材を再利用した、味わい深い手洗い収納。木のぬくもりに包まれる、清潔感あふれる空間設計です。

角(コーナー)を活かした、賢い収納アイデア。デッドスペースになりがちな壁面を造作家具で有効活用。リビングの整理整頓を叶えつつ、美しい空間を演出します。

空間を賢く使う、折りたたみベンチ。格子の内側を憩いの場に変える収納式ベンチは、使わない時は格子の一部としてスマートに収まります。機能美が光る縁側デザインです。

ただの壁ではなく、暮らしを育む『装置』として。鉢植えを飾ったり、小物を置いたり。実用的な機能を格子に組み込むことで、境界線が豊かなコミュニケーションの場に生まれ変わります。

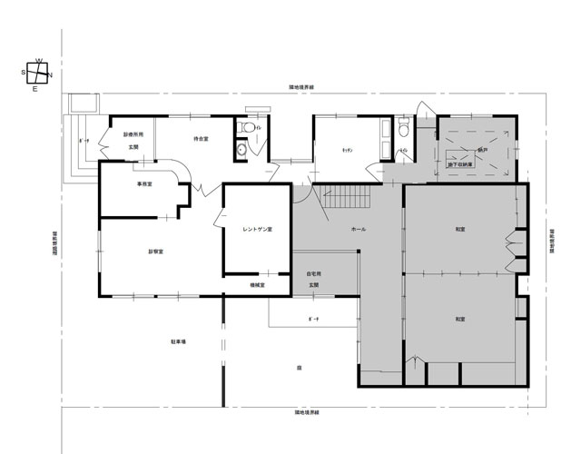
既存の間取り図:診療所と住居が一体となった、ユニークな空間構成。診察室やレントゲン室といった特殊な部屋の配置を活かし、今の開放的なリビングへと再生させました。
この事例に関連するリフォーム事例テーマ
お客様の声
高齢の母が2階に暮らすのには不便を感じ始めていた事が、リフォームのきっかけです。素人なので、あれこれと思うままに相談していましたが、予算の事も含め、ひとつひとつ丁寧に応えていただけました。母の存在がいつも感じられるようにとの要望もかなえていただき、元の診療所から劇的にリフォームができて満足しています。
担当者の工夫したポイント
もともと診療所というオープンな空間だった為、住居に改修した場合、プライバシーが保たれないという問題がありました。そこを多機能な格子というアイデアで提案。ただの目隠しではなく、様々な楽しい機能を持たせました。診療所の雰囲気を残したいというお施主様のご希望もあり、ソファや照明などは診療所既存のものを残しています。思い出や記憶を感じられる要素は残せるのも、リフォームの面白いところです。
リノベーションDATA
| 物件種別 | 一戸建て |
|---|---|
| 工事年度 | 2010年 |
| 所在地 | 東京都大田区 |
| 構造・工法 | 木造 2階建 |
| 工事期間 | 60日間 |
| 築年数 | 築40年 |
| 総費用 | 1,200万円 |
| 施工規模 | 63m2 |
| 仮住まい | 有り |
| 工事内容 | 一部改装、造作家具、外構工事 |

HOME








