大屋根の趣のある住まい
投稿日:2026年4月23日
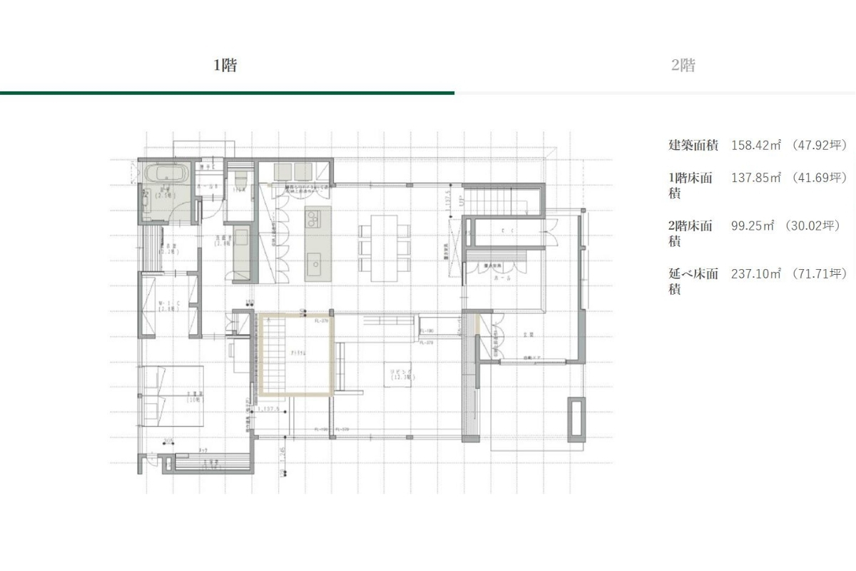
家づくりDATA
| 工法構造 | BF構造(木造) |
|---|---|
| 建築面積 | 158.42m2 / 47.92坪 |
| 延床面積 | 237.1m2 / 71.72坪 |
| 工事期間 | -- |
| 坪単価 | -- |
| 本体価格 | 5000万円台 |
| 建築地 | 埼玉県 |
| 竣工年 | -- |
| お問い合わせ先 | 詳しい情報や家づくりについては、ハウスネットギャラリー事務局が中立的な立場でご案内いたします。 電話:0120-406-212 (定休:水曜日 受付時間10:00~18:00) |
担当者の工夫したポイント
深い軒の設計にこだわりました。夏は強い日差しを遮って室内の温度上昇を抑え、冬は低い角度の陽光が室内奥まで差し込むよう軒の出を綿密に計算。道路や隣家からの視線もほどよく遮り、開放感とプライバシーを両立しています。日本の気候風土の知恵を現代の住まいに活かした設計です。
▼お問い合わせは全て無料です!▼
会社選びは担当者によって決まります!当サイトでは経験豊富な担当者が対応します。
気になるテーマで住宅会社へまとめてカタログ(資料)請求
-

ガレージハウス
車愛好家には堪らない!
▼ カタログ請求 ▼
-

平屋
古き良き日本の住まい
▼ カタログ請求 ▼
-

狭小住宅
8坪、10坪、12坪 狭小地で家が建つ
▼ カタログ請求 ▼
-

中庭・坪庭のある家
中庭(ガーデン)で楽しむ住まい!
▼ カタログ請求 ▼
-

3階建ての家
「2階リビング」などメリットたくさん
▼ カタログ請求 ▼
-

2世帯住宅
家族の絆が深まる住まい
▼ カタログ請求 ▼
-

リゾート空間を満喫
最高の贅沢 リゾート気分を満喫!
▼ カタログ請求 ▼
-

バリアフリー住宅
子供から高齢者まで安心の家
▼ カタログ請求 ▼
-

RC造
耐久性に優れた強い住まい!
▼ カタログ請求 ▼
-

吹き抜けのある家
開放的で気持ちいい空間が広がります。
▼ カタログ請求 ▼


