リフォーム東京都葛飾区新小岩
Awn[アウン](有限会社セレナ)
戸建本と暮らす、本一色の家
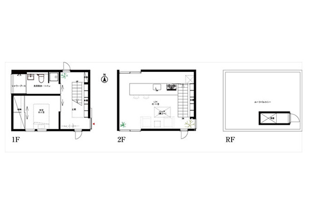
スケルトンリフォームで遊び心満載の木造戸建てをリノベーションした事例です。何よりの特徴は、1階から2階の吹き抜けを貫く大容量の書棚。展示スペースさがならの書棚は玄関から2階へ上がる階段を登りながら楽しむことができるのも嬉しいプラン。その改題もオーダーの特注品。2階上がって直ぐのLDKにある幅3.75mのキッチンもオーダーメイド。さらに屋上へ上がるための折り畳み階段も楽しみ。入った瞬間から驚きの連続。そんな発見ができる空間へ一新したリフォーム事例をぜひご覧ください。

部位別ギャラリー

都会的で洗練された、モノトーンの2色使い。シンプルな外観のアクセントとなる窓は、プライバシーを守りながらも家中に心地よい風を届けるよう、緻密な計算に基づいて配置されています。

【Before】リフォーム前の外観。長年住み継がれてきた趣はそのままに、経年による外壁の傷みや断熱性能の課題を抱えていたかつての姿。ここから最新の建材とデザインにより、現代的なモノトーンの邸宅へと再生します。

住まいの第一印象を鮮やかに彩る、土間仕上げの広い玄関ホール。壁一面の本棚と軽やかなスチール階段を配したこの場所は、単なる通路ではなく、趣味や読書、DIYなど多目的に使えるクリエイティブな空間です。

リビングの主役は、幅3.75mもの圧倒的なスケールを誇る大型オーダーキッチン。広大なワークトップは、お料理はもちろん、時に仕事に打ち込むワークスペースとしても。背景の壁面収納と調和するモノトーンのデザインが、上質な日常を演出します。

深い眠りを誘う、端正な寝室。室内の建具はすべて内装に合わせて設えた『造作』。壁一面のクローゼット扉は、空間を引き締めるアクセントとして機能し、既製品では出せない圧倒的な統一感と静寂を生み出しています。

機能美が息づく、スタイリッシュなサニタリー。浴室の仕切りを全面ガラスにすることで、視線が抜け、限られたスペースに圧倒的な開放感をもたらします。動線を整理し、白で統一された空間が、日々の身支度をより軽やかな時間へと変えてくれます。

1階から2階へと突き抜ける、圧巻の大型書棚。吹き抜けの開放感を活かしたこの壁面収納は、本だけでなくお気に入りの小物を飾るギャラリーとしても。家族の知識と想い出を刻み続ける、住まいのシンボルです。

【After】空を身近に感じる、プライベートな特等席。階段を上った先に広がるのは、街並みを見渡す圧倒的な開放感の屋上バルコニー。既存の瓦屋根から劇的な進化を遂げ、家族の思い出を育む新しい憩いの場が誕生しました。

【After】暮らしの可能性を広げる、3層構造の多機能プラン。1階の広々とした土間ホールから、2階の大型キッチンを主役とした大空間LDK、そして開放感あふれる屋上へと繋がります。縦の空間を最大限に活用し、趣味も家事も全力で楽しめる住まいへと生まれ変わりました。

普段は2階の天井にスマートに折り畳まれている、隠し階段。そこを上った先に広がるのは、日常を忘れて景色を楽しむ屋上バルコニー。限られた空間を最大限に活かす、遊び心あふれる設計の妙です。
この事例に関連するリフォーム事例テーマ
担当者の工夫したポイント
古くからの住宅が多く建ち並ぶ下町情緒豊かな街、江戸川区本一色。築46年の木造戸建てを、面積を損なうことなく新築同様にリノベーション。随所に遊び心を散りばめた、クールモダンな空間が出来上がりました。
リノベーションDATA
| 物件種別 | 一戸建て |
|---|---|
| 工事年度 | 2012年 |
| 所在地 | 東京都江戸川区 |
| 構造・工法 | 木造在来工法・2階建て |
| 工事期間 | 90日間 |
| 築年数 | 築46年 |
| 総費用 | 2,000万 |
| 施工規模 | 54m2 |
| 仮住まい | 無し |
| 工事内容 | スケルトンリフォーム/オーダーキッチン/オーダー家具/屋上・外構工事 |

HOME








