リフォーム東京都葛飾区新小岩
Awn[アウン](有限会社セレナ)
戸建空間に溶け込む御影石の「家具」キッチン
築15年戸建の2階部分をお施主様家族の住まいへフルリフォームした事例。特にこだわった黒石天板のオーダーメイドキッチンはLDKのインテリアとも馴染むよう設計。リビングとダイニングの間にある構造壁で圧迫感なく空間を仕切ることができます。デザインセンスの高いLDK空間が魅力的な事例です。

部位別ギャラリー

構造壁を質感豊かな石で包み込み、リビングとダイニングを緩やかにセパレート。リビング側はテレビやオーディオを美しく収めるセンターコアとして活用しました。重厚な素材感と柔らかな照明が、邸宅にふさわしい落ち着きを醸成します。

【Before】リフォーム前のリビング。部屋ごとに壁や建具で細かく仕切られ、光や視線が遮られていたかつての間取り。ここから構造壁をデザインの主役に据え、開放感あふれる一体的なLDKへと一新します。

イタリアから直輸入した、芸術品のようなアーチ型本棚が主役のダイニング。同じ木材を用いた重厚なダイニングテーブルと響き合い、シャンデリアの華やかな光に包まれる空間は、まさに至福の特等席です。

【Before】リフォーム前のダイニング。日常の風景が広がるかつての室内。ここから壁面の意匠や照明計画、そしてイタリア製の至高の家具を迎え入れることで、邸宅にふさわしい気品あふれるダイニングルームへと一新します。

LDKの主役として、家具のような佇まいを見せるアイランドキッチン。重厚な木目と黒い天板のコントラストが、上質な空間に圧倒的な存在感を放ちます。ビルトインのワインセラーを備え、日常をラグジュアリーに彩る至福の場所です。

クォーツ(水晶)が埋め込まれた黒い天板は、光の角度で表情を変える『繊細な輝き』と『圧倒的な存在感』が魅力。石貼りのセンターコアやシャンデリアが彩る空間の中で、キッチンの域を超えた芸術的な佇まいを放ちます。

壁面収納に美しく並ぶ、ドイツ・ミーレ社製のハイエンド家電。最上段にはご主人こだわりのエスプレッソマシーンを配し、キッチンを単なる調理の場から、至福の一杯を愉しむ贅沢な空間へと昇華させています。

LDKの入り口からキッチンの奥まで贅沢に続く、大理石タイルの床。艶やかな石の質感が空間に心地よい連続性と一体感をもたらし、住まい全体をクラスアップさせるラグジュアリーな動線を演出します。

お気に入りの輸入壁紙に包まれた、愛らしい子供部屋。可憐な花々が描かれた壁紙は、華やかでありながらどこか柔らかな、優しい空気感を醸し出します。お子様の創造力と健やかな毎日を育む、とっておきのプライベート空間です。

柔らかな光に包まれる、至福のサニタリー。床と壁に明るいトーンの石を贅沢にあしらい、家具調のデザインで仕立てた洗面カウンターを配置。清潔感の中に宿る上質な温もりが、日々の身支度を心弾むひとときへと変えてくれます。

サニタリーには、壁から優美に流れ出るウォーターフォール水栓を採用。流れる水の温度をLEDライトの色で知らせる先進の機能を備えました。機能性と遊び心が融合した、五感で楽しむラグジュアリーな手洗い空間です。

子供部屋に併設されたウォークインクローゼットは、お子様お気に入りの『秘密基地』に。大容量の収納力を確保しながら、お絵かきや読書に没頭できるパーソナルな空間としても機能します。成長に合わせて使い方が広がる、夢いっぱいのスペースです。

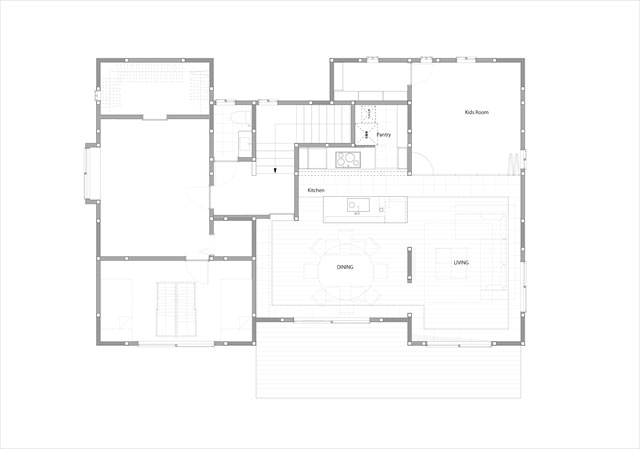
【Before】リフォーム前の間取り図。細かく仕切られた個室や、北側に配置されたコンパクトなキッチンなど、かつての標準的なレイアウト。ここから構造を見直し、光と風が通り抜ける開放的な多機能空間へと再生します。

【After】光と風が通り抜ける、開放的な大空間LDK。幅3.75mもの大型オーダーキッチンを主役に、パントリーや回遊性のある水回り動線を配置することで、家事効率を劇的に向上させました。1階から2階へと繋がる巨大な吹き抜け書棚が、家族の時間を豊かに彩ります。
この事例に関連するリフォーム事例テーマ
お客様の声
自分たちの望んだ雰囲気になり、満足しています。美味しいご飯を作らなければいけないと、料理する人にプレッシャーを与えるくらいの素敵なキッチンが完成したと思います。下の子はウォークインクローゼットを「私の部屋!」と決めてしまったので、しばらくその意見を尊重してあげようかなと思っています。
担当者の工夫したポイント
戸建の2階部分をお施主様ご家族のお住まいにリフォームしました。星を散りばめたようなきらめきが特徴的な、黒石天板のオーダーメイドキッチンを主役としています。リビングダイニングとキッチンのバランス、関係性を細かく設計。また、キッチンをインテリアの一部として成立させながらも、使いやすく実用的な工夫が隠れています。
リノベーションDATA
| 物件種別 | 一戸建て |
|---|---|
| 工事年度 | 2013年 |
| 所在地 | 千葉県松戸市 |
| 構造・工法 | 木造在来工法・2階建て |
| 工事期間 | 65日間 |
| 築年数 | 築15年 |
| 総費用 | 2,600万 |
| 施工規模 | 67m2 |
| 仮住まい | 有り |
| 工事内容 | デザイナーズ/オーダーキッチン/間取り変更 |

HOME








