リフォーム東京都葛飾区新小岩
Awn[アウン](有限会社セレナ)
戸建過去と対話して未来へ繋ぐ 異文化が交差するスタジオ
築40年のご自宅にヨガスタジオを取り入れたフルリフォーム事例。スタジオ部分は、国産杉無垢のフローリングへの張り替えをメインに、古い柱や壁はそのまま再利用して雰囲気あるスタジオ空間が完成。居住空間、2階天井は新たに断熱材を施し張りをそのままに開放的な空間でモダンな雰囲気を演出。1階玄関部分は、ヨガスタジオの生徒さんも楽には入れる広間とスタジオが一体となった空間で、大人数で利用することが可能。自宅と教室などを併設されたい方には、参考になる事例です。

部位別ギャラリー

1階玄関。たたきや上がり框はそのままに、フローリングの木口を見せる。段差を解消するステップは廃材を利用。

スタジオに併設、化粧コーナーの手洗いスペース。IKEAの鏡を利用してローコストと意匠性・機能性を実現。

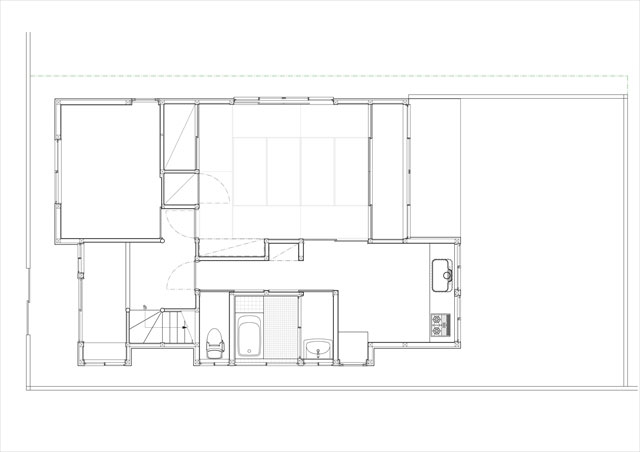
間取り図:リフォーム前

間取り図:リフォーム後

1階スタジオ。国産杉無垢フローリング、古い柱と砂壁、天井にスポットライトと必要最小限の工事のみ。

柱と筋交いの1部は交換。杉を使用することで床材との相性も良く、違和感なく収まりました。

2階の天井は、屋根の吹き替え時に断熱材を新たに施したため、現しが可能に。開放感抜群です。

2階の床は畳を残して1階との使い分けを意識。襖や障子は人数に応じた教室の広さを確保。

オープニングパーティの様子。仕上げ材の吸音性のバランスが良く、民族楽器の音や歌声が心地よく響く空間。

テーマカラーをターコイズブルーとした看板、ロゴマークも設計デザイナーの手によるものです。
この事例に関連するリフォーム事例テーマ
担当者の工夫したポイント
築40年のご自宅の一部で、ヨガやアロマテラピーなどのレッスンをされていたお施主様。居住部とスタジオ部をリニューアルすることになりました。打合せの中で伺った『未来』と、工事中に出会う柱の傷や壁の落書き、シールの跡といったひとつひとつの『痕跡=過去』の交差、日本家屋とジプシー文化の不思議な交差が素晴らしい空間を生み出しました。
リノベーションDATA
| 物件種別 | 一戸建て |
|---|---|
| 工事年度 | 2013年 |
| 所在地 | 東京都江東区 |
| 構造・工法 | 木造在来工法・2階建て |
| 工事期間 | 60日間 |
| 築年数 | 築40年 |
| 総費用 | 約1,100万 |
| 施工規模 | 120m2 |
| 仮住まい | 有り |
| 工事内容 | 全面改装/デザイナーズ/ヨガスタジオ/エクステリア |

HOME








