リフォーム東京都葛飾区新小岩
Awn[アウン](有限会社セレナ)
戸建光あふれる家族の場
築24年3階建て キッチンを中心に全面改修したリフォーム事例です。アイランドキッチンにこだわった今回の事例は、キッチンの広さに驚きます。背面の壁は全てが収納という大容量で、アイランド部分は常に整頓され、物を置かずとも使用できる、まさに理想のキッチン空間。キッチンを中心に家族と会話が弾むよう子供の勉強できるカウンターを近くに設置するなどの工夫も嬉しいポイント。キッチンを中心に家族が集まる家の成功事例。

部位別ギャラリー

建物正面を覆う格子は外部からの視線をコントロールするとともに、落ち着いた趣も演出しています。

以前洗面や浴室だった部分は、玄関とつながる大きなシューズクロークに変貌。

スタイリッシュな家具に彩られた、明るく広々としたリビング

リビングからキッチンへ。「抜け」感が穏やかな連続空間をつくています。

奥様こだわりのアイランドキッチン。料理、食事、ワークスペースと様々に活躍します。

キッチン床は掃除のしやすいタイルに。

以前ダイニングキッチンだった場所は小上がりの和室にリフォーム。小上がり内部は大容量の収納になっています。

リフォーム前:キッチン

ゆったりとした洗面は、背面のたっぷりとした収納や予洗い用のサブシンク付です。

特徴的な造作手洗いカウンターのあるトイレは広々とした空間となっています。

洗面室の勝手口から続く雰囲気ある坪庭

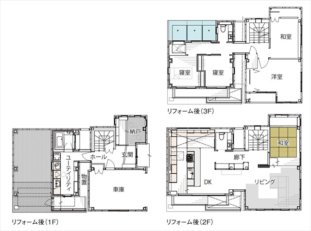
間取り図:リフォーム後

3階廊下の吹き抜けからは、キッチンに立つお母さんとのコミュニケーションが出来ます。
この事例に関連するリフォーム事例テーマ
お客様の声
私サイズのたくさんの収納。アイランドキッチンにこだわりました。
待ちに待った隣の物件が空き家になり購入。大がかりなリフォームとなりました。以前は1人しか通れない狭い通路のキッチン。デザイン性にもこだわり、建築家お勧めのオーダーアイランドキッチンは使い勝手も良く快適です。子供部屋もできて、空間も広くなり、住み心地も良く満足しています。
担当者の工夫したポイント
新築部分に大きなアイランドキッチンのあるダイニングを作りました。北側のトップライトからはいつも穏やかな光が降り注ぎ、家族が集まる気持ちの良い場所となっています。壁の一面にはお子様が勉強する長いカウンターも設置しました。
リノベーションDATA
| 物件種別 | 一戸建て |
|---|---|
| 工事年度 | 2014年 |
| 所在地 | 東京都江戸川区 |
| 構造・工法 | 鉄骨造・3階建て |
| 工事期間 | 300日間 |
| 築年数 | 築24年 |
| 総費用 | 約6,200万 |
| 施工規模 | 143m2 |
| 仮住まい | 有り |
| 工事内容 | 全面改装/デザイナーズ/エクステリア |

HOME








