リフォーム東京都葛飾区新小岩
Awn[アウン](有限会社セレナ)
マンションR壁の内外
中古マンションを水回りを大胆に移動して、小さなお子様のために安全に暮らせる家へ全面改修したリノベーション事例です。分散されていた水回りを広さを一か所に集め、日々の家事動線も改良しつつ、大胆に間取りを変更し大空間のLDKを実現しました。木の温もりを感じる優しい空間に、子育て中のお施主様も納得のリフォーム事例です。

部位別ギャラリー

ご夫婦で選び抜いた繊細なモザイクタイルが、玄関を華やかに彩ります。造作のベンチは、靴の脱ぎ履きをスムーズにするだけでなく、お気に入りの小物を飾るギャラリースペースとしても活躍します。

玄関から和室まで優雅に続くR壁(曲面の壁)。住まい全体を包み込むような木の温もりと、柔らかな曲線が、家族の時間を優しくつなぎます。

リフォーム前の2階リビング。長年住み継いできた歴史を感じる空間です。構造を活かしつつ、現代のライフスタイルに合わせた大胆な間取り変更がいよいよ始まります。

ナチュラルカラーを基調とした、お子様にも優しい住まい。キッチンからダイニングまで見渡せるオープンな設計で、お料理中も家族の笑顔を見守れる、安心の空間が広がります。

暮らしを彩る、美しさと機能性の共演。背面の大型壁面収納は、家電から食器までスッキリと収まる大容量。生活感を感じさせない、常に整った理想のキッチンを実現しました。

光を柔らかく通す障子が、モダンなリビングに凛とした和の趣を添えます。全開にすれば境界のない一体感のある大空間に。伝統的な建具を現代の住まいに昇華させた、リノベーションの技が光ります。

夜の静寂に浮かび上がる、障子の柔らかな灯り。格子の陰影が織りなす繊細な表情が、リビングをより豊かで落ち着いた大人のリラックス空間へと変貌させます。

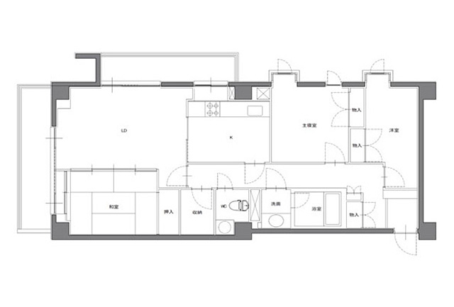
【BEFORE間取り】リフォーム前の間取り図。細かく区切られた部屋や、家事動線の重なりなど、当時のライフスタイルに合わせた標準的な3LDKでした。

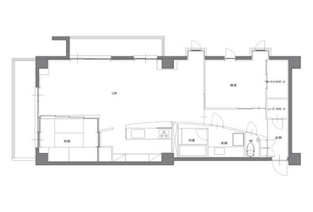
【AFTER間取り】玄関から和室までを優雅につなぐR壁が、空間に驚きと広がりをもたらす新間取り。光と風が通り抜ける開放的なLDKを中心に、家族の絆を育む理想の空間が完成しました。

玄関からリビングへと続く、美しい木の板貼りの壁。柔らかなダウンライトが木目の陰影を際立たせ、帰宅する家族を温かな光の演出で迎え入れます。
この事例に関連するリフォーム事例テーマ
お客様の声
出産をきっかけに、住み替えを考え始めました。理想的な中古マンションを見つけたのですが、部屋数が多いため各空間が狭く、リビングをもっと広くし、子供にも優しい空間にしたいと思い、リフォームを検討。しかし、どの会社も水周りを動かす事に消極的で、プラン内容も似たりよったりという中、Awnのプランはとてもユニークで、水周りの制約もうまく克服できると確約して下さった点が決め手でした。トイレの移動については「難しいコトと不可能なコトは違います」と我々の不安を取り除いてくれました。素晴らしい住宅にしていただき、本当にありがたく思っています。
担当者の工夫したポイント
リフォーム前は、玄関から長い廊下で各部屋につなぐ固定的なプランで、水周りが分散していました。調査検討の上、水周りの移動は可能と判断し、特徴的な木のR壁の中にずべての水廻りを囲い込むプランとしました。R壁にしたことで、玄関からリビングまでの空間に変化と奥行を持たせる事ができ、この家の印象を決定付ける要素になっています。
リノベーションDATA
| 物件種別 | マンション |
|---|---|
| 工事年度 | 2009年 |
| 所在地 | 東京都新宿区 |
| 構造・工法 | RC造 |
| 工事期間 | 80日間 |
| 築年数 | 築24年 |
| 総費用 | 1,370万円 |
| 施工規模 | 94m2 |
| 仮住まい | 有り |
| 工事内容 | 中古物件リノベーション、全面改装、造作家具 |

HOME








