リフォーム東京都葛飾区新小岩
Awn[アウン](有限会社セレナ)
マンションホテルのような、明るく広い空間へ
3LDKから2LDKへ間取り変更により、明るく開放的でホテルのような品格ある空間へマンションを全面改修したリフォーム事例です。間取りは、リビングに隣接する和室と繋げ大空間のLDKへ変更。独立していたキッチンも、対面式に変更しキッチンスペースも明るく生まれ変わりました。何より玄関を入ってすぐの壁は、カーブした意匠でリビングまで繋がりを広く見せる演出がされているのがポイントです。気分を一新するマンションリフォームの成功事例をご覧ください。

部位別ギャラリー

壁を少しずらす工夫で、光あふれる玄関へ。閉鎖的だった空間に心地よい開口部を設け、明るく開放的な住まいの顔に生まれ変わりました。

間仕切りをすべて取り払い、光が奥まで届く圧倒的な開放感。家族の気配を感じながらも、それぞれがゆったりと過ごせる広々としたLDKを実現しました。

施工前の様子:使い込まれた内装と、少し手狭に感じられた間取り。現代のライフスタイルに合わせ、開放感あふれる住まいへとフルリノベーションをスタートします。

【キッチンリノベーション】開放感あふれるオープンキッチンへ。白と黒のモノトーンで統一されたスタイリッシュなダイニング空間が、毎日の暮らしにゆとりを与えます。

寝室の一角に、愛犬との思い出に囲まれて趣味の水彩画を楽しめる特等席を。使わない時はスッキリ収まる収納式デスクが、限られた空間を賢く彩ります。

【浴室リノベーション】シックな黒の浴槽が映える、モダンなヒーリング空間。ミストサウナ機能を追加し、自宅にいながら本格的なスパのようなリラクゼーションを楽しめます。

【空間デザイン】光が主役のパウダールーム。ガラスの間仕切りにより、かつての閉塞感を一掃しました。白と黒のコントラストが美しい洗練されたデザインが、朝の支度を爽快な時間に変えてくれます。

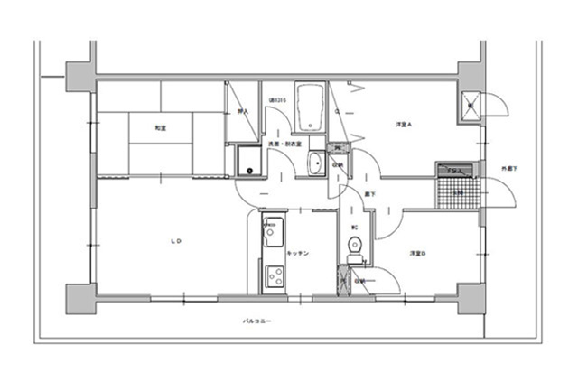
【Before:間取り図】リフォーム前の3LDK。細かく仕切られた和室やキッチンにより、光が奥まで届きにくい配置でした。ここからどのように『開放的な大空間』へと進化したのか、設計の工夫に注目です。

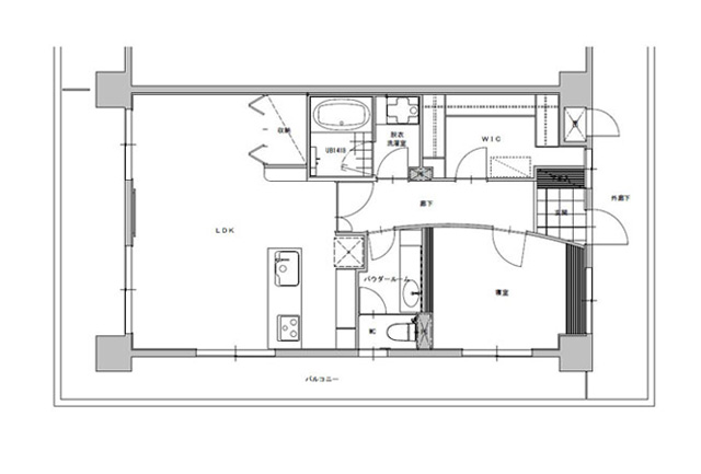
【After:間取り図】間仕切りを大胆に撤去し、光と風が家中を巡る開放的な1LDK+WICへ。玄関の開口部やパウダールームのガラス仕切り、寝室の趣味スペースなど、こだわりを凝縮した革新的なプランです。

玄関からリビングへと続く、緩やかなカーブを描く意匠壁。柔らかな曲線が空間に奥行きを与え、家族やゲストを優しく住まいの奥へと導く、美術館のような気品あふれる廊下です。
この事例に関連するリフォーム事例テーマ
お客様の声
愛犬が天国に旅立った事もあり、とにかく大胆なリフォームをして気分を変えたかった事が、そもそものきっかけでしたが、センスの良い若い方のアイデアのおかげで「女優さんの家」と言われるくらい、セレブな空間になりました♪愛犬をモチーフにした、ちょっとした仕掛けも嬉しいですね。色々なところに一緒に家具を見に行ったりと、リフォームのアドバイスを楽しく教えてもらって良かったです。
担当者の工夫したポイント
大胆なリフォームをお望みだったお施主様。角部屋の利点を最大限に生かし、光を多く取り入れた白基調の空間は、まるでホテルのような品格を漂わせる、明るく広いLDKになりました。
リノベーションDATA
| 物件種別 | マンション |
|---|---|
| 工事年度 | 2010年 |
| 所在地 | 東京都葛飾区 |
| 構造・工法 | RC造 |
| 工事期間 | 75日間 |
| 築年数 | 築16年 |
| 総費用 | 1,470万円 |
| 施工規模 | 60m2 |
| 仮住まい | 有り |
| 工事内容 | 全面改装、間取り変更、造作家具 |

HOME








