リフォーム東京都葛飾区新小岩
Awn[アウン](有限会社セレナ)
マンショントットくんちのほっこりハウス
中古マンションを3人家族と愛犬が快適に暮らす住まいへリフォームした事例です。ポイントは、木の素材使いと収納計画。LDK貼って直ぐの壁面に収納とさらに、ウォークインクローゼットを完備。キッチンのカウンターは造作し、大容量の収納でいつもすっきり空間を実現します。マンションという限られた空間もアイデア1つで収納空間を作り出すことが可能です。

部位別ギャラリー

間接照明が壁を優しく包み込む、温もりあふれるLDK。ダイニングとソファを一体化させることで、ゆとりある広々としたリビング空間を実現しました。

【Before】リフォーム前のダイニング・キッチン。カウンター下にソファを配置した、かつてのコンパクトなリビング。ここから、間接照明と造作家具を駆使した、広がりを感じる上質な空間へと一新します。

閉塞感のあった壁と吊戸棚を撤去し、光が抜ける開放的なキッチンへ。温かみのある大きな集成材の造作カウンターが、家族との会話や家事の時間をより豊かに広げます。

新しく造作したキッチン収納。アンティーク風のアイアン把手が、家の中心としての存在感を際立たせます。リビング側からも出し入れしやすい大容量の収納で、空間はいつもスッキリ。

和室の床を380mm上げて、リビングと繋がる心地よい『小上がり』空間へ。テレビは壁に埋め込むことでフラットに仕上げ、鮮やかなオレンジのアクセントウォールがリビングの主役を引き立てます。

畳の下は、まるごと大容量の収納スペース。900角の畳8枚半+押し入れ分という圧倒的な広さを確保しました。お子様のアジトのようなティーピーテントを置いても、お部屋はいつもスッキリ片付きます。

【Before】リフォーム前の和室。リビングとフラットに隣接した一般的な和室でしたが、ここから床の高さを上げ、収納力とデザイン性を兼ね備えた『小上がり空間』へと一新します。

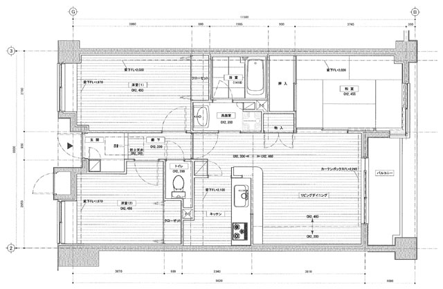
【Before】リノベーション前の間取り図。独立した和室や、壁に囲まれたキッチンなど、かつての標準的な3LDKのレイアウト。ここからどのように、家族の繋がりと圧倒的な収納力を備えた住まいへと進化するのでしょうか。

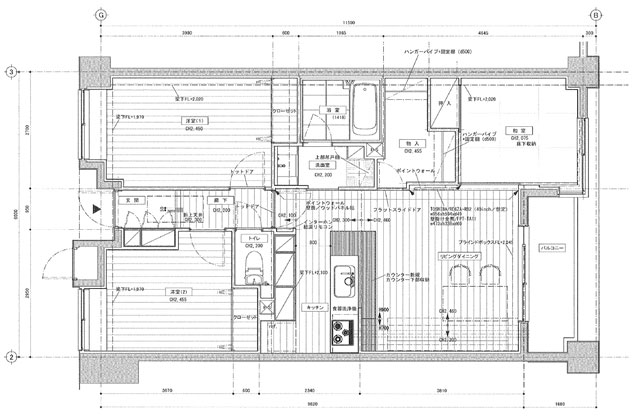
【After】リノベーション後の間取り図。小上がり和室の広大な床下収納や、ダイニングとリビングを一体化させた効率的なレイアウト。家族の繋がりを大切にしながら、圧倒的な収納力と開放感を実現した理想の住まいです。

狭角のスポットライトと間接照明を巧みに組み合わせた、計算し尽くされた照明計画。光と影が織りなすコントラストが、夜のリビングに奥行きと深い安らぎを演出します。

インテリアに美しく溶け込む、完全オリジナルのペットドア。大切なペットだけでなく、小さなお子様にとっても、まるでお気に入りの秘密基地のようなワクワクする通り道です。
この事例に関連するリフォーム事例テーマ
お客様の声
昔から「木のぬくもりを感じる家」に憧れており、マイホーム購入をきっかけに素敵な空間にして頂きました。建築家、大工さん、資金計画のプランナーさん、そしてAwnスタッフの皆様が優しく信頼できる対応をしてくれたおかげです。家族全員が住みやすく、大好きな我が家の生活が楽しいです。本当にありがとうございました。
担当者の工夫したポイント
中古マンションご購入の資金計画ご相談からスタートし、若いご夫婦と小さなお子さん、ワンちゃんの家族仕様にリフォームしました。ご夫婦の素敵なセンスと雰囲気そのままの、ほっこりした空間が出来上がりました。
リノベーションDATA
| 物件種別 | マンション |
|---|---|
| 工事年度 | 2012年 |
| 所在地 | 東京都江東区 |
| 構造・工法 | SRC造 |
| 工事期間 | 約30日間 |
| 築年数 | 築7年 |
| 総費用 | 500万 |
| 施工規模 | 70m2 |
| 仮住まい | 有り |
| 工事内容 | 一部改装、造作家具、収納、和室 |

HOME









