リフォーム東京都葛飾区新小岩
Awn[アウン](有限会社セレナ)
マンションななめの壁で仕切る暮らし
斜め6.2度の角度を持つ壁を持つ築30年のマンションをスケルトンリフォームした事例。玄関から奥に続く壁が斜めに入ることにより、広がりのある空間を演出。お施主様が中古で購入した住まいは、収納もほとんどなく設備にも不満があったとのころ。綿密な打ち合わせで新築のようなデザインセンスの高い空間へと変身したリフォームの成功事例をご覧ください。

部位別ギャラリー

機能美を極めた、静謐なエントランス。左側のスリット内には傘立てまで綿密に計画された大容量収納を配し、右側の壁面にはデザインの一部として溶け込む折りたたみスツールを。空間の美しさと利便性が、ゲストを優しく迎え入れます。

ベランダから見渡す、奥行きのあるリビング。オープンキッチン、低重心のソファ、そして深みのある色使いの壁面収納が、計算された柔らかな照明と相まって、大人の安らぎを満たす落ち着いた空間を演出します。

【Before】リノベーション前のリビング。大型の家具や家電、観葉植物が窓際を塞ぎ、せっかくの採光が活かされず、どこか窮屈さを感じさせていたかつての住まい。ここから、光と風が通り抜ける開放的な大空間へと一新します。

コンパクトな空間に凝縮された、プロの知恵。60cm幅の大型食洗機をスマートにビルトインし、背面収納はミリ単位で設計された造作ならではの使いやすさ。家事をスムーズにする機能美がここにあります。

家事効率を極めた、機能的なキッチンスペース。リビングより一段明るい照度を確保し、作業のしやすさに配慮しました。奥には洗濯機と物干しスペースを完備。最小限の動線で、ゆとりある暮らしを叶えます。

【Before】リフォーム前のダイニング・キッチン。限られたスペースに家具やフィットネス機器が並び、調理や食事、移動の動線が重なり合っていたかつての室内。ここから、機能美と効率的な動線を兼ね備えた大人モダンな空間へと一新します。

照明は間接照明とフロアランプのみに絞り、深い眠りへと誘う穏やかな光の階層を。モザイクタイルをあしらったヘッドボードが、落ち着いた空間の中にさりげない個性を添える、大人のための寝室です。

リビングの温もりとは一変し、そこは静謐な『ホテルライク』な空間。大理石の質感とオフホワイトの壁が織りなす洗練されたサニタリー。全面ガラスの浴室が、開放感あふれる極上のバスタイムを叶えます。

床からカウンターまで上質な大理石で統一し、ホテルさながらの気品が漂うパウダールーム。壁一面の大きな鏡に、使い勝手を考え抜いたガラス棚やオープン収納を完備。空間にぴったり収まるスツールも、造作ならではのこだわりです。

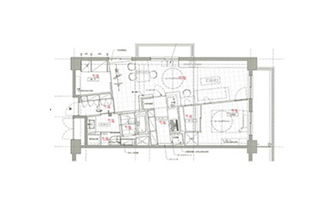
【Before】リノベーション前の間取り図。中央の長い廊下によって各居室が分断され、キッチンやサニタリーも独立した、かつての標準的なレイアウト。ここから無駄を削ぎ落とし、光と風が巡る開放的な大空間へと進化します。

【After】廊下を排し、空間を最大化した1LDK+書斎のレイアウト。中央コアを軸に家中を回遊できる動線を確保し、全面ガラスの浴室や壁一面の収納など、機能美と開放感を極めた住まいへと生まれ変わりました。
この事例に関連するリフォーム事例テーマ
お客様の声
中古マンションを購入して10年。長い間の準備が報われ、夢が叶いました。設備がチープで、収納がほとんどない空間に悩んでいました。たくさん会話をして、私の好みや価値観を引き出してくれた建築家、スタッフの皆様にも感謝しています。色々な会社に相談しても、何か一つしっくりこなかった中で、コスト面も含め、私にピッタリの相談相手が見つかった気がします。
担当者の工夫したポイント
『住まいのインテリアコーディネーションコンテスト リフォーム部門』において、経済産業大臣賞を受賞致しました。約2年という時間をかけ、お客様と綿密な打ち合わせを繰り返しながら、じっくりと計画を進めさせて頂きました。6.2。の角度を持つ壁の挿入による新密度の分割と、いくつかの大きさの建具の開閉による分割された空間の連結、そして角度と複数の仕上げ材により引き起こされる空間認知の錯覚が特徴的な作品です。壁を斜めに仕切ることによって、奥行きを感じられる空間となっています。
リノベーションDATA
| 物件種別 | マンション |
|---|---|
| 工事年度 | 2012年 |
| 所在地 | 東京都江東区 |
| 構造・工法 | SRC造 |
| 工事期間 | 60日間 |
| 築年数 | 築30年 |
| 総費用 | 1,500万 |
| 施工規模 | 60m2 |
| 仮住まい | 有り |
| 工事内容 | 全面改装/デザイナーズ/オーダーキッチン/オーダー家具/インテリアコーディネート |

HOME








