リフォーム東京都葛飾区新小岩
Awn[アウン](有限会社セレナ)
マンション木の香フラット
所有マンションの1室を木の香りが漂う癒しの空間へ全面改修したリフォーム事例です。ご子息が住まわれるとのことですが、将来的な賃貸利用も考慮したワンルームへと改善。壁面全てが収納スペースという大容量は、ワンルームには嬉しいポイントです。フローリングの木目と壁の白で落ち着きある空間へ将来の展望も十分考えられるワンルームへのリフォームです。

部位別ギャラリー

玄関横のシューズシェルフには、お出かけに便利なカバン専用スペースを完備。廊下に並ぶ洗濯機スペースも扉で隠せる設計に。生活感を徹底して抑えつつ、スムーズな帰宅動線と家事効率を両立させました。

ワンルームの可能性を広げる、賢い間仕切り。壁面収納に収められたリネンのカーテンをサッと引くだけで、一つの部屋が二つのプライベートな空間に。光を通す柔らかな質感が、圧迫感のない心地よい境界線を作ります。

オンとオフを鮮やかに切り替える、賢い仕掛け。キッチンへと続く廊下をスライド戸で仕切ることで、居住スペースを瞬時に端正な空間へ。隣接する造作デスクは、無垢の温もりに包まれて仕事や趣味に没頭できる特等席です。

夜の表情を自在に操る、光の演出。天井に配した2列のダクトレールと可動式スポットライトが、無垢の杉床に美しい陰影を描き出し、その時々の気分に合わせた最適なライティングで、至福のひとときを演出します。

【Before】リフォーム前の室内。リビングと和室が垂れ壁で仕切られ、どこか閉塞感を感じさせていたかつての間取り。ここから壁や天井をすべて取り払い、光が隅々まで届く自由な大空間へと再生します。

浴槽とシャワーを一体化させ、カーテンで仕切る欧米スタイルのバスルーム。洗面台とシームレスにつなげることで、コンパクトな空間にゆとりとホテルライクな洗練された雰囲気をもたらします。

コンパクトな空間に、機能美を凝縮。洗面スペースには3段の造作ガラス棚を完備し、圧迫感を与えずに収納力を確保しました。透明感のある素材選びが、限られた場所を広々と、より美しく見せてくれます。

【After】独立したプライベート空間を保ちながら、以前よりも広々と感じられる快適なトイレへ。白を基調とした明るい内装と、予備のストックに便利なシンプルな棚が、日々の使い勝手を向上させます。

美しさと機能が同居する、シンメトリーな壁面収納。中央の間仕切りカーテン収納を軸に左右対称に構成し、テレビスペースも2か所確保しました。無垢の杉床が持つ温もりの中で、家族それぞれが思い思いの時間を過ごせる、整然とした大空間です。

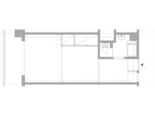
【Before】リフォーム前の間取り図。細かく仕切られた和室や洋室、独立したキッチンなど、かつての標準的なレイアウト。ここから壁をすべて取り払い、住む人のライフスタイルに合わせて自在に変化する大空間へと再生します。

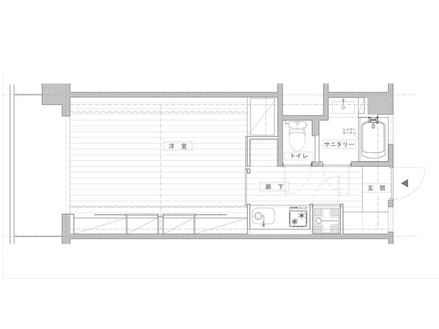
【After】間仕切り壁をなくし、光と風が通り抜けるワンルームへ。中央をリネンのカーテンで仕切ることで、ライフスタイルに合わせて空間を自在に変化。玄関からキッチン、サニタリーへと繋がるスムーズな動線と、壁一面の収納力で、コンパクトながら豊かな暮らしを叶えます。

お施主様が大切にされていた思い出の板を、ワークデスクの天板として再利用。かつての記憶を新しい住まいに『ビルトイン』した、世界にたった一つの特別な書斎スペースです。無垢の杉床とともに、使うほどに味わいが増していきます。
この事例に関連するリフォーム事例テーマ
お客様の声
あの部屋がこんなに変身するとは、想像以上の出来です。他に古い物件を手に入れて改造したくなりますね。
担当者の工夫したポイント
神田川にほど近い静かな住宅街に建つ築35年のマンションが、木の香が漂う癒され感に満ちた空間に大変身。オーナー様のご子息がお住まいになるためのリフォームでしたが、後々の賃貸利用も考慮してプランニングしました。
リノベーションDATA
| 物件種別 | マンション |
|---|---|
| 工事年度 | 2014年 |
| 所在地 | 東京都文京区 |
| 構造・工法 | RC造 |
| 工事期間 | 40日間 |
| 築年数 | 築44年 |
| 総費用 | 470万 |
| 施工規模 | 27.4m2 |
| 仮住まい | 有り |
| 工事内容 | 全面改装/デザイナーズ |

HOME








