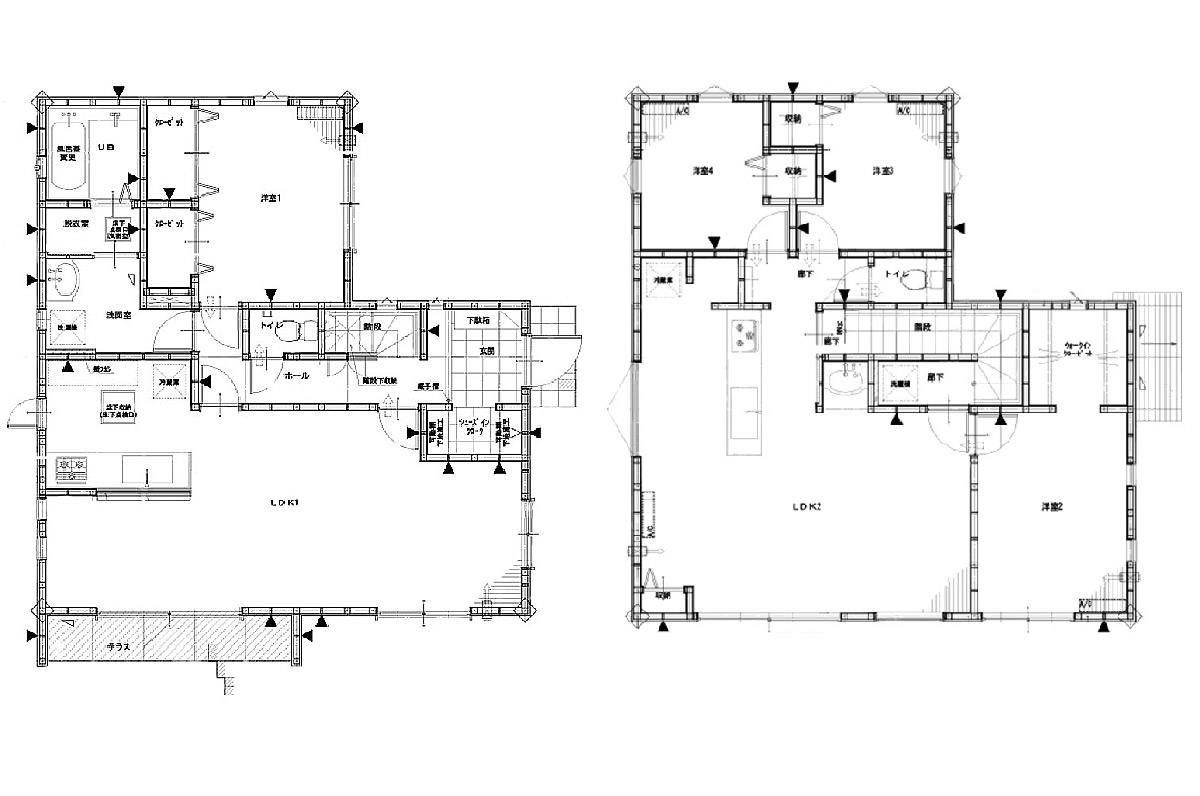
40坪の2世帯住宅
投稿日:2025年8月23日
この事例のテーマ
家づくりDATA
| 工法構造 | 木造軸組工法 |
|---|---|
| 建築面積 | 71.21m2 / 21.52坪 |
| 延床面積 | 134.11m2 / 40.5坪 |
| 工事期間 | 5ヶ月 |
| 坪単価 | 60万円 |
| 本体価格 | 2,400万円 |
| 建築地 | 東京都 西多摩郡 |
| 竣工年 | 2024年 |
| お問い合わせ先 | 詳しい情報や家づくりについては、ハウスネットギャラリー事務局が中立的な立場でご案内いたします。 電話:0120-406-212 (定休:水曜日 受付時間10:00~18:00) |
テーマDATA
| テーマ名 2世帯住宅 | |
|---|---|
| 二世帯タイプ | 部分共有型(玄関・お風呂) |
お客様の声 / 口コミ
住んでいたアパートが手狭になってきたため、戸建て住宅を建てることを検討し始めました。
以前家族もアイディホームの注文住宅を建てていたこともあり性能も安心できると思いアイディホームにお願いしました。2世帯住宅ながらも安価で建築出来て良かったです。
担当者からのコメント
1Fに親世帯、2Fに息子世帯という2世帯住宅でしたが両世帯とも気を遣わずに生活して頂けるようにプランニングをすることを心掛けました。
広い土地ということもありプランの決定にかなり時間を要しましたが満足してもらえるような間取りになってよかったです。
アイディホーム人気事例
▼お問い合わせは全て無料です!▼
会社選びは担当者によって決まります!当サイトでは経験豊富な担当者が対応します。
気になるテーマで住宅会社へまとめてカタログ(資料)請求
-

ガレージハウス
車愛好家には堪らない!
▼ カタログ請求 ▼
-

平屋
古き良き日本の住まい
▼ カタログ請求 ▼
-

狭小住宅
8坪、10坪、12坪 狭小地で家が建つ
▼ カタログ請求 ▼
-

中庭・坪庭のある家
中庭(ガーデン)で楽しむ住まい!
▼ カタログ請求 ▼
-

3階建ての家
「2階リビング」などメリットたくさん
▼ カタログ請求 ▼
-

2世帯住宅
家族の絆が深まる住まい
▼ カタログ請求 ▼
-

リゾート空間を満喫
最高の贅沢 リゾート気分を満喫!
▼ カタログ請求 ▼
-

バリアフリー住宅
子供から高齢者まで安心の家
▼ カタログ請求 ▼
-

RC造
耐久性に優れた強い住まい!
▼ カタログ請求 ▼
-

吹き抜けのある家
開放的で気持ちいい空間が広がります。
▼ カタログ請求 ▼















































































Close





















ハウスメーカー
工務店
建築家
エリアから探す
条件から探す
夫婦で暮らす住まい
設備に拘った機能的な住宅
